8 KALAISCHROU & 11 PORINOU
APARTMENTS & PRICES

3 exclusive residences across five levels | Private layouts and individual character
The residences at 8 Kalaischrou and 11 Porinou offer enhanced privacy and individuality within the city’s historic core. With just three homes in total, this building represents a truly limited opportunity to live at the heart of Athens.
APARTMENT No.
BEDROOMS
GROSS INTERNAL
AREA (GIA)
AREA OF
TERRACE(S)
PRICE
* without VAT
AVAILABILITY
LAYOUT PLAN
VR TOUR
Ground Floor
1
46,35
22,55
370.000 €

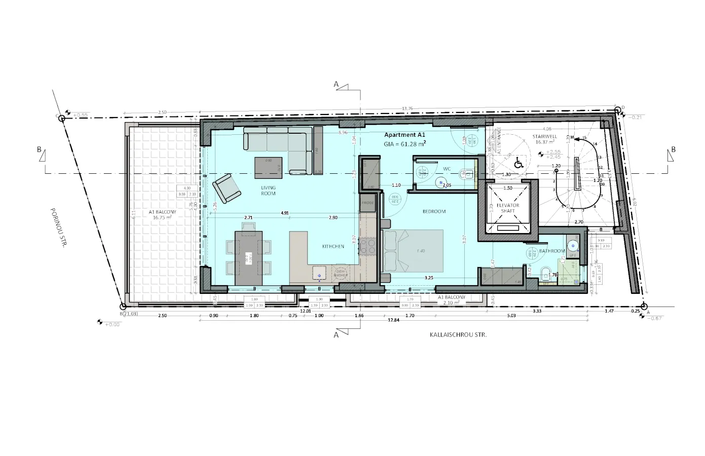
Level A (1st Floor)
1
61,28
18,85
495.000 €

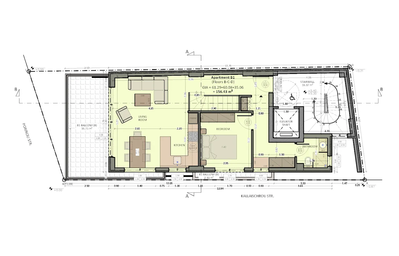
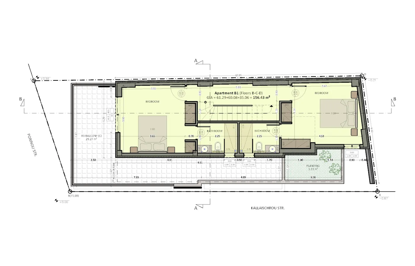
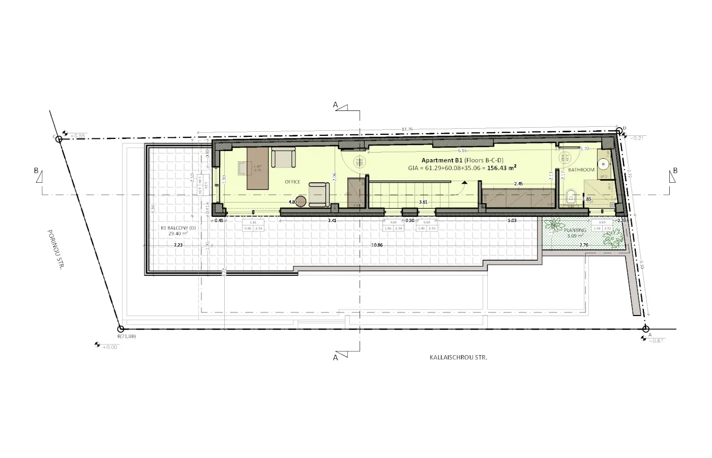
Levels B, C & D (2nd, 3rd & 4th Floors)
3
156,43
77,52
1.800.000 €



